K-Thengono Design Studio has designed the first Jakarta outpost of The Matcha Tokyo as a spatial interpretation of the matcha ceremony, translating ritual into form, light, and material.

The Matcha Tokyo
Jakarta, Indonesia
2026
94.5 m²
Commercial
Completed
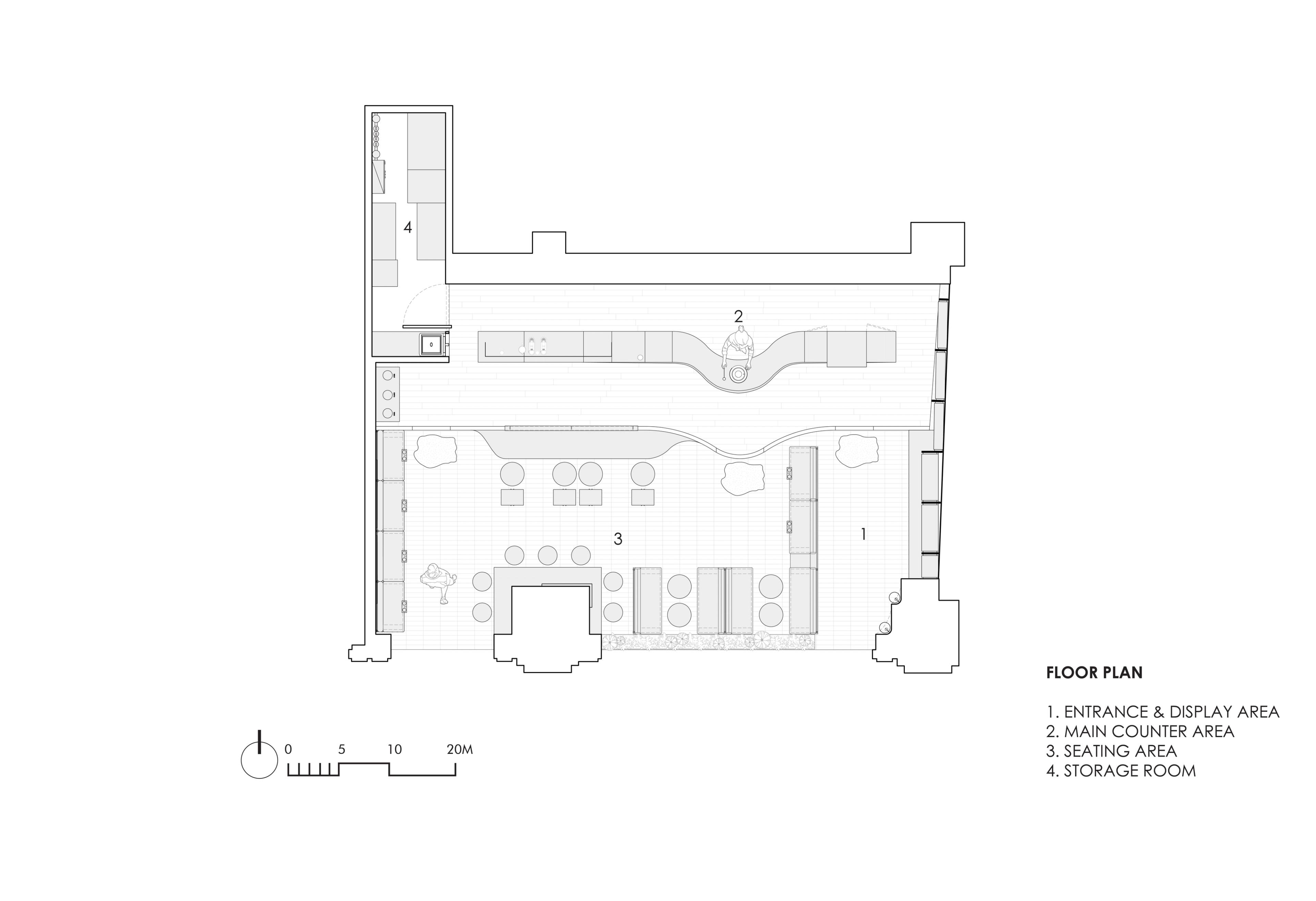
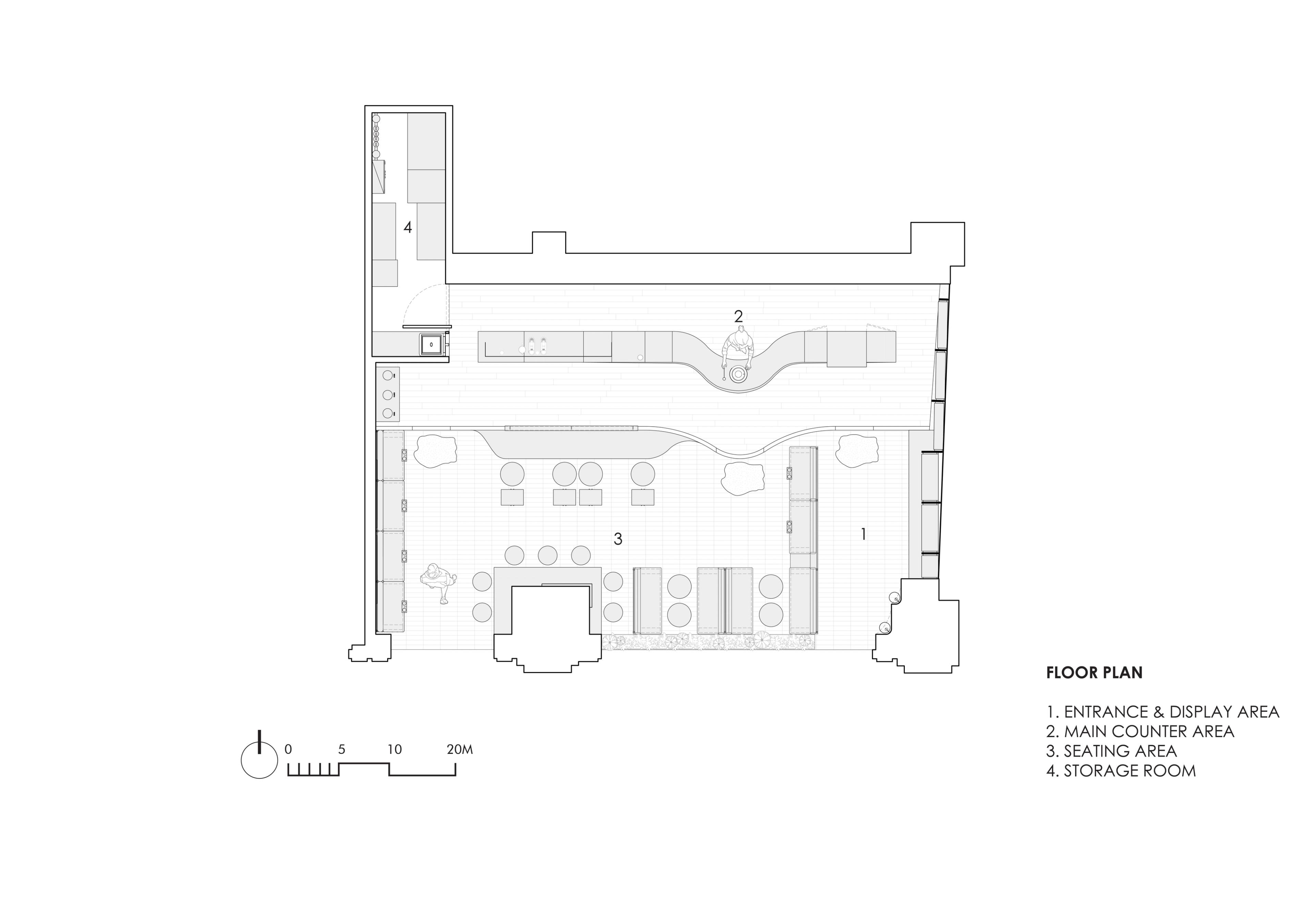
Interior
Positioned at the rear, the bar anchors the space. The counter extends forward to frame the ceremony, inviting guests to witness each movement as it unfolds. Its curved, rippling surface recalls the matcha bowl, suggesting rhythm and quiet motion. Above, a sculpted ceiling evokes the foam of whisking, diffusing light to create an airy, contemplative atmosphere.


The spatial sequence follows a distinctly Japanese sensibility, expressed through Indonesian materials. Andesite tiles ground the main floor and lead to a raised timber platform at the bar. Stepping stones trace the progression of a traditional tea house, heightening awareness as guests approach the ceremonial zone. Rattan veneer infused with natural pigment wraps the bar, cabinets, and seating, lending warmth and tactility to the pared palette.
The space embodies The Matcha Tokyo’s balance of precision and youthful energy, grounded in craft and sensory experience. Local materials and intentional design come together in a modern expression of ritual, where simplicity and context shape an intimate and subtly theatrical lived space.








